Дом, 122 м², 2 эт.

Краснодарский край, хутор Копанской, Центральная улица

7 600 000 руб.

62 296 руб./м²
Дом, 122 м², 2 эт.

Описание Объект №2957

Продам: новый кирпичный дом в черте Краснодара, х.Копанской.

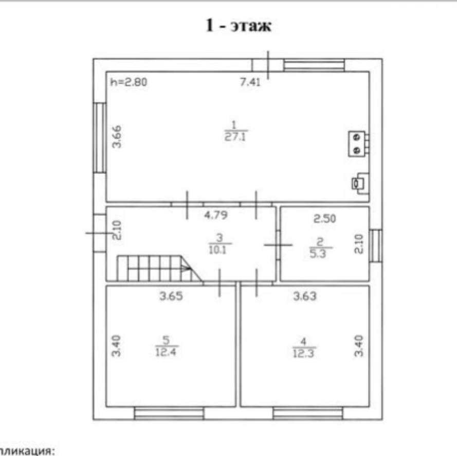
Общая площадь 122м2

Планировка: на первом этаже две изолированные спальни (12,3 и 12,,4 м2), кухня-гостиная 27,1 м2 с выходом во двор, санузел 5,3м2, прихожая 10,1м2 с лестницей на второй этаж; на втором этаже помещение свободной планировки площадью 52м2, где можно ещё сделать 2-3 комнаты.

В доме выполнена качественная предчистовая отделка.

Земельный участок: 4 сотки

Расположение: дом расположен в тихом и спокойном месте, при этом автобусная остановка в 10 минутах, два маршрута в центр Краснодара. Рядом шикарная база отдыха с бассейном, рыбалкой. Школа и садик- 10-15 минут пешком.

  • Площадь участка :

  • Тип :

  • Площадь :

  • Этажность :

  • Водопровод :

  • Отопление :

  • 4 сот.

  • Дом

  • 122 м²

  • 2

  • Скважина

  • Автономное электро

  • Тип участка :

  • Материал дома :

  • Ремонт :

  • Кол-во комнат :

  • Газ :

  • ИЖС

  • Кирпичный

  • Требует ремонта

  • 3

  • Есть возможность

Карта хутор Копанской, Центральная улица